標準+案例:地埋式污水處理廠地下箱體防火設計這樣做
地埋式污水處理廠將所有處理單元置于地下箱體內,防火分區劃分是地下箱體消防設計的重要內容。闡述了現行有關規范在地下建筑消防設計中的應用差異,總結了地下箱體消防設計存在的問題。通過對國內部分同類工程案例的分析,總結了地埋式污水處理廠地下箱體的消防設計依據,并將其劃分為“五級三類”。結合武漢某全地埋式污水處理廠的設計,介紹了其地下箱體的消防設計內容和經驗,在不妨礙工藝設計的前提下達到了單個防火分區建筑面積不超過2 000 m2的要求。
根據《室外排水設計標準》(GB 50014)和《城市排水工程規劃規范》(GB 50318),地上式污水處理廠周圍應設有一定的衛生防護距離,且一般不小于150 m。但是,隨著城市的發展,污水處理廠址會被“中心化”,衛生防護距離會被擠壓,進而會引發與城市建設用地之間的矛盾。與傳統地上式污水處理廠相比,地埋式污水處理廠把所有或主要處理設施置于地下箱體內,地上空間可用作城市公園、停車場等公共用地,既節約了土地資源,又有效解決了傳統地上式污水處理廠面臨的“鄰避”問題。如貴陽彭家灣五里沖棚戶區改造污水處理綜合工程采用全地埋4層加蓋的結構形式,地面層為城市公園、地下1層為商場和機械停車庫、地下3層和4層為市政污水處理廠,用地指標僅為0.26 m2/(m3·d)。但地埋式污水處理廠同樣面臨著火災風險,如荷蘭鹿特丹Dokhaven地埋式污水處理廠曾因氫氧化鈉加藥泵過熱引發火災事故。復雜的土建結構和較大的埋置深度,無疑給消防設計、火災撲救、人員逃生增加了巨大難度。近年來地埋式污水處理廠在我國的建設數量越來越多、單體建設規模越來越大,倘若嚴格執行現行建筑防火規范要求,地下箱體內防火分區劃分單元多、處理設施布置不便,地面安全出口多、景觀效果差,反而不利于其推廣。因此,本文總結了國內部分地埋式污水處理廠案例和相關研究,結合武漢某全地埋式污水處理廠的設計,介紹了在現行規范體系下其地下箱體的消防設計經驗。
01 關于防火分區劃分的法規介紹
1.1 國家標準(規范)
根據《建筑設計防火規范》(GB 50016)條文3.3.1、3.3.3、3.7.3和3.7.4,地埋式污水處理廠單個防火分區最大允許建筑面積為1 000 m2;當建筑內設置自動滅火系統時,防火分區最大允許建筑面積可增加1倍;每個防火分區必須至少有1個直通室外的獨立安全出口;廠房內任一點至最近安全出口的直線距離不大于60 m。另外,根據《建筑設計防火規范》(GB 50016)條文5.3.2,建筑內設置自動扶梯、敞開樓梯等上、下層相連通的開口時,其防火分區的建筑面積應按上、下層相連通的建筑面積疊加計算。
根據《汽車庫、修車庫、停車場設計防火規范》(GB 50067)條文5.1.1、5.1.2和6.0.2,地下汽車庫的防火分區最大允許建筑面積為2 000 m2,車庫內任一點距離安全出口的距離不大于45 m;設置自動滅火系統時,單個防火分區的最大允許建筑面積可增加1倍,車庫內任一點距離安全出口的距離不大于60 m;除Ⅳ類汽車庫以外每個防火分區的人員安全出口不應少于2個。
根據《地鐵設計規范》(GB 50157)條文28.2.2,地下車站站臺和站廳公共區應劃為一個防火分區;地下換乘站共用站廳時,站廳公共面積不應大于5 000 m2;站臺和站廳內任意一點到疏散口的距離不大于50 m;地下車站安全出口的數量應經計算確定,且不應少于2個直通地面的安全出口。此外,《城市軌道交通技術規范》(GB 50490)條文7.3.14要求,多線換乘站共用一個站廳公共區,且面積超過單線標準車站站廳公共區面積2.5倍時,消防設計應經當地消防部門認可。
1.2 地方標準(規范)
和其他河北省住建廳于2019年12月發布的《雄安新區地下空間消防安全技術標準》(DB 13J 8330)是國內目前對地下排水廠站消防安全作出“明確”規定的技術標準,但關于地下排水廠站防火分區的要求為:“操作層設備間的防火分區劃分應符合現行國家標準《建筑設計防火規范》的規定”“操作層設備間每個防火分區的安全出口數量應經計算確定,且不應少于2個”“操作層處理區、設施層內任一點至最近安全出口的直線距離不應大于60 m”。
浙江省住建廳于2020年6月發布《地埋式城鎮污水處理廠建設技術導則(試行)》,對浙江省地埋式城鎮污水處理廠的消防設計要求為:“防火分區劃分應符合現行國家標準《建筑設計防火規范》的規定”“全地埋式污水處理廠的防火設計應經消防專項評估”且“操作巡視層的單個防火分區的面積應取不大于5 000 m2,同時最遠疏散距離取70 m”。
為了更好地指導地埋式污水處理廠的設計,中國建設工程標準化協會發布的《城鎮地下式污水處理廠技術規程》(T/CECS 729)從2021年開始實施。規程對操作層設備用房的消防設計要求與《建筑設計防火規范》完全一致,對操作層處理區的消防設計要求較《建筑設計防火規范》寬松。其中,操作層處理區的防火分區面積可按工藝要求確定,且敞開的水面面積可不予計入,但安全出口的設置與《建筑設計防火規范》的要求一致。此外,規程要求管廊層防火墻分隔間距不宜超過200 m,層內任一點至最近安全出口的直線距離不宜大于100 m,與《城市綜合管廊工程技術規范》(GB 50838)對燃氣管道艙和電力電纜艙的消防設計要求一致。
1.3 國外標準(規范)
根據新加坡民防法(SCDF)《建筑防火規范(2018年版)》(CODE OF PRACTICE FOR FIRE PRECAUTIONS IN BUILDINGS 2018)對大型地下空間的要求,位于地下的防火分區面積不得超過4 000 m2和15 000 m3,設置最少2個出口樓梯。根據美國消防協會(NFPA)《廢水處理和廢水收集設施的防火標準(2020年版)》(Standard for Fire Protection in Wastewater Treatment and Collection Facilities 2020)和《建筑結構和安全規范(2018年版)》(Building Construcion and Safty Code 2018),污水處理廠基本屬于輕危險級(相當于中國戊類)工業建筑,無自動噴水滅火系統保護時單個防火分區允許建筑面積不得超過1 860 m2,有自動噴水滅火系統保護時單個防火分區允許建筑面積不得超過6 510 m2,且地下建筑應設置自動噴水滅火系統。
1.4 性能化設計評估
性能化設計評估即“建設工程消防性能化設計評估”,是指根據建設工程使用功能和消防安全要求,運用消防安全工程學原理,采用先進適用的計算分析工具和方法,為建設工程消防設計提供設計參數、方案,或對建設工程消防設計方案進行綜合分析評估,完成相關技術文件的工作過程。以日本為例,自2000年《建筑基準法》全面修訂之后,日本法律開始允許建筑物防火性能化設計和評估,防火分區建筑面積可根據《建筑基準法》和評估結果作出必要的調整。目前,我國也正在加緊相關研究探索。
根據《建設工程消防性能化設計評估應用管理暫行規定》 (公安部令〔2009〕第52號),①超出現行國家消防技術標準適用范圍的;②按照現行國家消防技術標準進行防火分隔、防煙排煙、安全疏散、建筑構件耐火等設計時,難以滿足工程項目特殊使用功能的,建設工程可采用性能化消防設計。但是,①國家法律法規和現行國家消防技術標準有嚴禁規定的;②現行國家消防技術標準已有明確規定,且工程無特殊使用功能的,建設工程不應采用性能化消防設計。
根據《建設工程消防監督管理規定》 (公安部令〔2012〕第106號),①國家工程建設消防技術標準沒有規定的;②消防設計文件擬采用的新技術、新工藝、新材料可能影響建設工程消防安全,不符合國家標準規定的;③擬采用國際標準或者境外消防技術標準的建設工程,公安機關消防機構應當在受理消防設計審核申請之日起五日內將申請材料報送省級人民政府公安機關消防機構組織專家評審。專家評審最終結論可作為建設工程消防性能化設計的依據。
1.5 法規小結
污水處理廠生產產品、生產工具、生產環節及運行管理等各方面均不同于一般意義上的廠房和倉庫,各國、各行業尚無針對地埋式污水處理廠建筑消防設計的專屬標準或規范。我國內地不同地區和行業的規范對地下式建筑防火分區最大允許建筑面積的要求差異較大,但都允許通過增加自動滅火系統保護來拓展防火分區最大允許建筑面積、都要求至少有1個安全出口。雖然《城鎮地下式污水處理廠技術規程》(T/CECS 729)關于防火分區面積劃分的規定較《建筑設計防火規范》寬松,但其為推薦性協會標準。國外對地下式建筑防火分區最大允許建筑面積的要求比國內寬松,具體要求視建筑物危險性等級而定,但總的來看同樣缺少針對地埋式污水處理廠建筑消防設計的專項規范。雖然國內已有研究建議地埋式污水處理廠消防設計要求適當放松,但都缺乏法理依據。如劉世德等通過對現行規范體系和地埋式污水處理廠火災特征的分析研究,建議將地埋式污水處理廠操作層單個防火分區最大允許建筑面積擴大至5 000 m2,疏散距離延長至70 m。
地埋式污水處理廠建造形式有別于傳統污水處理廠,但使用功能并無特殊之處,因此是否適用性能化消防設計仍存有爭議。另外,根據《住房和城鄉建設部 應急管理部關于做好移交承接建設工程消防設計審查驗收職責的通知》 (建科函〔2019〕52號),自2019年6月30日以后建設工程消防設計審查驗收職責由消防救援機構移交至住房和城鄉建設主管部門。而且,根據公安部2020年第158號令,《建設工程消防監督管理規定》從2020年6月1日正式廢止。總的來看,雖然我國對建設工程消防性能化設計進行了一定的嘗試,并對適用范圍作了初步界定,但是“是否適用”的判定主體尚未明確,且各具體執行部門對法規的認知和解讀有差異。因此,目前國內的建筑消防性能化設計尚無完備的法理依據,仍處于探索階段。
02 案例總結
近年來,地埋式污水處理廠在我國水污染防治領域的應用越來越多,北京、深圳、上海、廣州、昆明、合肥等城市已有大量應用案例,部分地埋式污水處理廠操作層的消防設計見表1。
由表1可知,目前國內地埋式污水處理廠操作層消防設計沒有統一的依據,總體而言單個防火分區的允許建筑面積大致可分為“五級三類”:“五級”是指最大允許建筑面積有1 000 m2、2 000 m2、4 000 m2、5 000 m2和其他規格5個等級;“三類”是指設計依據有嚴格執行《建筑設計防火規范》,參照執行《建筑設計防火規范》《汽車庫、修車庫、停車場設計防火規范》《地鐵設計規范》等相關規范和性能化消防設計專項評估(論證)3種途徑。對于規
模較小的地埋式污水處理廠,一般通過增加自動滅火系統保護即可使防火分區建筑面積控制在《建筑設計防火規范》允許范圍內,如北京門頭溝第二再生水廠、林州市第二污水處理廠等。對于規模較大的地埋式污水處理廠,有條件的會通過消防設計審查或者專項評估(論證)進行針對性的性能化設計,以使消防設計滿足當地消防主管部門的要求,如北京槐房污水處理廠、合肥清溪污水處理廠;無條件的會通過參照相關規范予以解決,如上海泰和污水處理廠認為處理單元屬于“構筑物”范疇,石家莊正定新區污水處理廠則對箱體內的火災和消防救援進行了模擬分析,因此其防火分區的劃分均未嚴格執行《建筑設計防火規范》。對于規模較大的地埋式污水處理廠,一般都會通過建筑消防性能化設計使地下箱體的防火分區建筑面積突破《建筑設計防火規范》的要求,如蘭州七里河安寧污水處理廠(改擴建工程)對不符合現行防火規范要求的部分委托甘肅省建設工程消防專業委員會及甘肅省消防總隊組織專項消防論證。但是,建筑消防性能化設計基本采用“一廠一議”模式,防火分區最大允許建筑面積不固定。
表1 部分地埋式污水處理廠操作層消防設計案例

注:地埋式污水處理廠土建工程一般按遠期規模一次建成,安裝工程分期實施,表中所列設計規模為土建設計規模。
模較小的地埋式污水處理廠,一般通過增加自動滅火系統保護即可使防火分區建筑面積控制在《建筑設計防火規范》允許范圍內,如北京門頭溝第二再生水廠、林州市第二污水處理廠等。對于規模較大的地埋式污水處理廠,有條件的會通過消防設計審查或者專項評估(論證)進行針對性的性能化設計,以使消防設計滿足當地消防主管部門的要求,如北京槐房污水處理廠、合肥清溪污水處理廠;無條件的會通過參照相關規范予以解決,如上海泰和污水處理廠認為處理單元屬于“構筑物”范疇,石家莊正定新區污水處理廠則對箱體內的火災和消防救援進行了模擬分析,因此其防火分區的劃分均未嚴格執行《建筑設計防火規范》。對于規模較大的地埋式污水處理廠,一般都會通過建筑消防性能化設計使地下箱體的防火分區建筑面積突破《建筑設計防火規范》的要求,如蘭州七里河安寧污水處理廠(改擴建工程)對不符合現行防火規范要求的部分委托甘肅省建設工程消防專業委員會及甘肅省消防總隊組織專項消防論證。但是,建筑消防性能化設計基本采用“一廠一議”模式,防火分區最大允許建筑面積不固定。
03 實例剖析
3.1 工程簡介
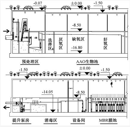
武漢某污水處理廠設計規模為15萬m3/d,采用全地埋建設模式,所有處理設施均位于地下箱體內。地下箱體結構尺寸為L×B=196.7 m×153.3 m,各處理單元分兩組平行設置,平面布置見圖1,豎向布置見圖2。二級處理單元采用改良AAO生物池+MBR膜池工藝,出水水質主要指標設計值執行《地表水環境質量標準》(GB 3838)中的Ⅳ類水標準(其中TN≤15 mg/L);污泥脫水采用板框壓濾工藝,待含水率降至60%以后泥餅外運至第三方進行最終處置。

圖2 地下箱體豎向布置
3.2 建筑消防
膜酸洗藥液采用30%的檸檬酸溶液(使用時在線稀釋),膜堿洗和接觸消毒藥液采用5%的次氯酸鈉溶液,生物池外加碳源采用25%的乙酸鈉溶液,除磷藥劑和污泥脫水調理劑采用成品PAC溶液(有效成分12%),均為不可燃溶液。設置除臭及通風系統后,地下箱體內的甲烷、硫化氫、氨氣等易燃易爆氣體濃度均降至規范允許范圍內,無燃爆危險。地下箱體的火災危險性等級為戊類,建筑耐火等級為一級,操作層(負1層)單個防火分區最大允許建筑面積按2 000 m2控制,防火分區之間采用防火墻分隔,各分區功能見表2。另外,地下2層的綜合管廊單獨作為一個防火分區(編號18),建筑面積為1 968.38 m2;地下2層其他構筑物無人區,如AAO生物池、MBR膜池、接觸消毒池等均不再計入防火分區。
表2 地下箱體操作層建筑消防設計

表2中各防火分區建筑面積均包含域內結構柱和墻體截面積。為控制防火分區的建筑面積,將9防火分區、17防火分區內的檸檬酸、次氯酸鈉及乙酸鈉溶液池墻體從負1層底板澆筑至負1層頂板,形成不進人的封閉空間,建筑面積相應地予以扣除。根據《建筑設計防火規范》條文7.3.1,地埋式污水處理廠埋深大于10 m且總建筑面積大于3 000 m2時應設置消防電梯。由于操作人員需下至9防火分區、10防火分區、17防火分區的負2層及18防火分區,這4個防火分區需設置消防電梯。各疏散樓梯的凈寬不小于1.1 m,疏散走道的凈寬不小于1.4 m,任一分區的疏散距離均不超過60 m。
3.3 消防設施
地下箱體內的消防設施由消火栓滅火系統、自動噴淋滅火系統、氣體滅火系統、便攜式滅火器和火災自動探測系統組成。消火栓滅火系統、自動噴淋滅火系統均采用臨時高壓給水系統,由消防水池、消防水泵、穩壓設施、屋頂消防水箱、輸配水管路及滅火設施、報警閥、水泵接合器、配套控制系統組成。其中,除消防水池、屋頂消防水箱共用外,其他設施分別獨立設置。消火栓滅火系統、自動噴淋滅火系統、氣體滅火系統的控制方式均有自動啟動和手動啟動兩種,且平時處于自動開啟狀態。
根據《建筑設計防火規范》條文8.2.1、8.3.3、8.3.4和《消防給水及消火栓系統技術規范》(GB 50974)條文3.3.2、3.6.1、3.6.2,地下箱體內的消火栓滅火系統按體積大于25 000 m3的地下建筑設防,同一時間火災發生次數按1次考慮,火災延續時間按2 h考慮,消防用水量按40 L/s設計。室內消火栓滅火系統輸配水管路采用不分區環狀網布置,同一平面有2支消防水槍的2股充實水柱同時達到室內任何部位;栓口靜水壓力不超過1. 0 MPa,最不利點消火栓靜水壓力不小于0.07 MPa。
鑒于地下箱體為戊類廠房,火災發生可能性低,根據《自動噴水滅火系統設計規范》(GB 50370)條文5.0.1,自動噴淋滅火系統按中危險I級設防,MBR膜池設備間(凈空11.5 m)噴水強度按8 L/(min·m2)考慮,其余(凈空7 m)均按6 L/(min·m2)考慮,火災延續時間按1 h考慮,消防用水量按40 L/s設計。自動噴淋滅火系統輸配水管路采用環狀網布置,水力報警閥處的最大壓力按1.2 MPa控制,最不利點噴頭最低壓力按0.05 MPa控制。
根據《氣體滅火系統設計規范》(GB 50370),總配電間及MBR膜池配電間設有七氟丙烷氣體滅火系統,采用全淹沒滅火方式,設計濃度為9%。
根據《建筑滅火器配置設計規范》(GB 50140),地下箱體內的滅火器采用磷酸銨鹽干粉滅火器,共設置143處,每處均配置兩具手提式滅火器,局部配置推車式滅火器,以確保其最大保護距離滿足規范要求。
3.4 通風及防排煙設施
地下箱體采用機械強制通風換氣系統,且與除臭系統分開設置。根據《建筑防排煙系統技術標準》(GB 51251)的要求,地下箱體內屬于高度自動化的工業廠房,區域內均無較多可燃物、無人員停留,故可不做排煙系統。負1層第1防火分區為一個防煙分區,設置有機械排煙系統,排煙量按照《汽車庫、修車庫、停車場設計防火規范》條文8.2.5計算,負1層第2、3防火分區的疏散走道,設置有機械排煙系統,排煙量按照《建筑防煙排煙系統技術標準》條文4.6.3計算。疏散樓梯間、消防電梯前室設置機械加壓送風系統,樓梯間與前室間設置余壓閥,以保證樓梯間、前室的余壓滿足規范要求。根據《工業建筑供暖通風與空氣調節設計規范》(GB 50019)條文6.3.8,地下箱體內各區間換氣標準見表3。

3.5 消防設計小結
該地埋式污水處理廠地下箱體建筑消防設計嚴格執行《建筑設計防火規范》的要求,箱體內的消防設施由消火栓滅火系統、自動噴淋滅火系統、氣體滅火系統、便攜式滅火器、火災自動探測系統、通風及防排煙設施組成,單個防火分區最大允許建筑面積按2 000 m2控制。除此之外,地下箱體內還設有除臭系統,對生物處理區等設備較少的單元設置混凝土密封頂板,對預處理區、污泥處理區、膜池等必須敞口的單元的設備采用除臭罩密封,在維持良好工作環境的同時降低危險氣體濃度和爆炸風險。該方案為保證工藝設計的合理性、便捷性提供有力支撐,同時也提升了廠區地面景觀效果。
04 結語
(1)國內尚無針對性的消防設計專項標準,現行標準體系未能充分考慮污水處理廠的火災特征,對地下箱體的設計約束較大。
(2)案例總結表明,目前我國地埋式污水處理廠的消防設計依據主要可分為“五級三類”。對于規模較大、防火分區劃分較難的地埋式污水處理廠,一般可通過相關部門認可后的性能化消防設計方案突破現行《建筑設計防火規范》的要求,但是各廠執行情況不統一。
(3)為了解決地埋式污水處理廠消防設計的法理依據,有必要盡快總結地埋式污水處理廠消防設計經驗和存在問題,適時啟動對現行規范體系的完善工作。
以上是小編收集整理的標準+案例:地埋式污水處理廠地下箱體防火設計這樣做部分內容來自網絡,如有侵權請聯系刪除:153045535@qq.com;
本文地址:http://www.lxstny.com/shuichuli/926.html










